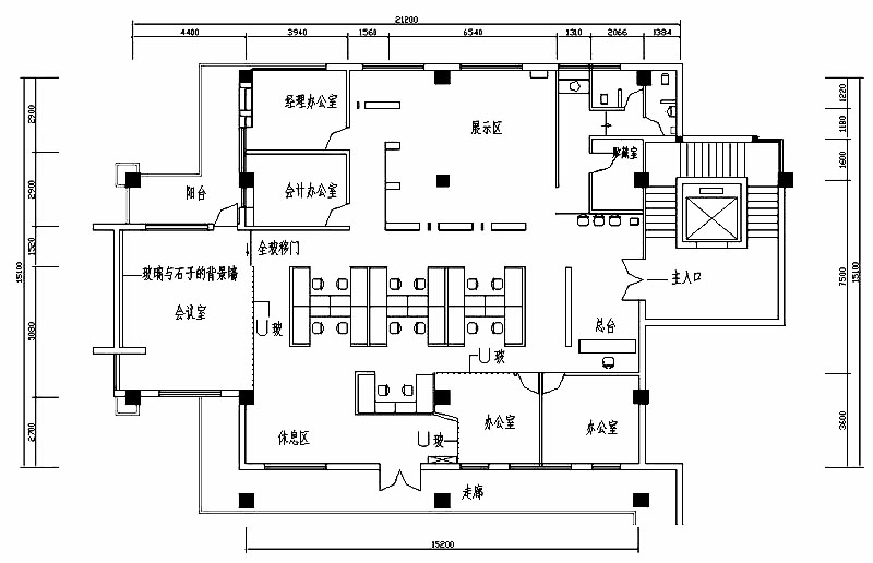
案例簡介 亨通國際大廈是現代化高級辦公樓,亨通國際大廈位于市區(qū)繁華地段,地理位置優(yōu)越,毗鄰地鐵二號線和明珠輕軌線,中山公園站,多路公交線經過,交通十分便捷。設施齊全,裝修現代,是企業(yè)領袖精明睿智之選擇。亨通國際大廈的物業(yè)管理周到,為商家提供一流的商務服務。亨通國際大廈房型布局合理,靈活分割可滿足各企業(yè)人性化的設計追求。亨通國際大廈配置立體車庫。是理想的辦公場所。 &nb
類型
金融/貿易
案例簡介 亨通國際大廈是現代化高級辦公樓,亨通國際大廈位于市區(qū)繁華地段,地理位置優(yōu)越,毗鄰地鐵二號線和明珠輕軌線,中山公園站,多路公交線經過,交通十分便捷。設施齊全,裝修現代,是企業(yè)領袖精明睿智之選擇。亨通國際大廈的物業(yè)管理周到,為商家提供一流的商務服務。亨通國際大廈房型布局合理,靈活分割可滿足各企業(yè)人性化的設計追求。亨通國際大廈配置立體車庫。是理想的辦公場所。 &nb
金融/貿易







一站式工程裝修設計服務
Copyright ? 2018-2038上海古都建筑設計集團有限公司版權所有 侵權必究
免責聲明:網站部份內容來互聯網或者AI輔助生成,不代表古都建筑設計的意見,如有侵權請聯系刪除
網站備案:滬ICP備11026211號技術支持:網站優(yōu)化https://www.xpci.com.cn/丨 滬公網安備 號


